Análisis de Precios Unitarios y Encadenamiento de Análisis en ConstrucSoft Valor Ganado - Artículo
viernes, 19 de junio de 2020
lunes, 6 de enero de 2020
ANÁLISIS Y SUB-ANÁLISIS
ANÁLISIS DE PRECIOS UNITARIOS
SUB ANÁLISIS
ANÁLISIS Y SUB-ANÁLISIS – EJEMPLO
ENCADENAMIENTO DE ANÁLISIS CON SUB ANÁLISIS
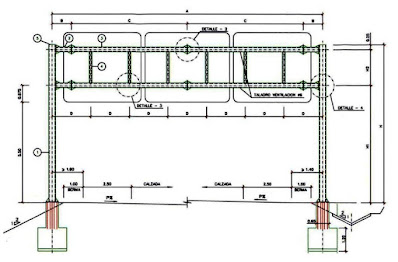
Vamos
a ver el encadenamiento de análisis con sub-análisis, en la siguiente obra que
consiste en pre fabricar y montar varias estructuras de acero con sus
respectivas señales de tránsito. Estas estructuras de acero estarán fijas en sus
respectivas bases de concreto armado.
Para
este ejemplo el presupuesto de obra es el siguiente:
ANÁLISIS DE PRECIOS UNITARIO
Aquí
se muestra como análisis principal, el montaje de una estructura metálica de
señalización vial, la cual requiere 1.39 m3 de excavación manual, una
preparación de 2.00 m2 de encofrado y una colocación de 30 kg de acero de
refuerzo. Instalada la estructura, se deberá efectuar una limpieza y
eliminación de material excedente de 1.81 m3 y finalmente, tarrajear y pintar
las bases de concreto.
SUB ANÁLISIS
A
su vez este análisis de concreto de 175 kg/cm2, tiene encadenados los sub-análisis
de tercer nivel, que son el tarrajeo primario y pintura en muros.
ANÁLISIS Y SUB-ANÁLISIS – ESQUEMA
ENCADENAMIENTO DE ANÁLISIS CON SUB ANÁLISIS
El
esquema del encadenamiento del análisis principal con los sub-análisis, es el
siguiente, pudiendo el sistema ConstrucSoft tener hasta 9 niveles de
encadenamiento.
Existe
otra manera de considerar una partida conformada solo por sub-análisis, siendo
este método incorrecto, debido a que tiene el inconveniente de no reflejar un
análisis principal.
Esta es una concepción errónea, debido a que no se puede reflejar esta partida en un diagrama Gantt por no tener avance ni rendimiento de la cuadrilla.
En este caso si se modifica la cantidad de estructuras a montar, habría que modificar independientemente las cantidades de los sub-análisis, lo cual conlleva a cálculos innecesarios.
ANÁLISIS Y SUB-ANÁLISIS – VOLÚMENES DE OBRA
HORAS HOMBRE Y VOLÚMENES DE LOS SUB ANÁLISIS
EJEMPLO DE CARPETA ASFÁLTICA EN CALIENTE
ENCADENAMIENTO DE SUB ANÁLISIS
Vamos
a ver cómo trabaja el sistema ConstrucSoft-Valor
Ganado, los sub-análisis en la pavimentación de una carretera, siendo el
presupuesto el siguiente:
La partida a analizar es 02.04 PAVIMENTACIÓN - CARPETA ASFÁLTICA EN CALIENTE, la cual consiste en la colocación de una capa de mezcla asfáltica en caliente sobre una base granular, para lo cual la mezcla asfáltica es preparada en una planta, y luego transportada a la obra.
Este análisis de carpeta asfáltica en caliente tiene hasta 3 niveles de encadenamiento de su-análisis.
ANÁLISIS DE 3er NIVEL
Extracción de arena y piedra, tanto la piedra como la arena son extraídos en sus respectivas canteras.
Transporte a chancado, la arena y la piedra son transportadas desde las canteras de extracción hacia la planta de chancado.
Chancado de piedra, la etapa de chancado se efectúa con máquinas trituradoras que rompen y reducen el volumen de las piedras, obteniendo partículas más pequeñas.
Zarandeo, mediante el empleo de zarandas, se separa la piedra o la arena, de acuerdo a tamaños específicos.
Transporte a obra, el material zarandeado, tanto la arena como la piedra, es transportado en volquetes al lugar de la obra.
ANÁLISIS DE 2do NIVEL
Arena para mezcla, es
un análisis de 2do nivel calculado solo por m3, el cual está conformado por los
siguientes sub-análisis.
- Extracción desde la cantera y apilamiento de la arena
- Transporte de la arena desde la cantera a la planta chancadora
- Zarandeo de la arena
- Transporte desde la planta chancadora a la obra
Piedra para mezcla, es un análisis de 2do nivel calculado solo por m3, el cual está conformado por los siguientes sub-análisis.
- Extracción desde la cantera y apilamiento de la piedra
- Transporte de la piedra desde la cantera a la planta chancadora
- Zarandeo de la piedra
- Transporte desde la planta chancadora a la obra
ANÁLISIS PRINCIPAL – 1er NIVEL
Aquí el análisis principal son los 1,524.76 m3 de CARPETA ASFÁLTICA EN CALIENTE, y tiene encadenados como análisis de 2do nivel la arena para mezcla asfáltica y la piedra para mezcla asfáltica. Y a su vez estos análisis de 2do nivel tienen encadenados sus respectivos análisis de 3er nivel, tal como se aprecia en el siguiente esquema.
Este análisis principal tiene un avance de 220 m3/día con un rendimiento de 0.4727 h-h/m3, y es sobre este análisis que se efectuará el control de los avances físicos de la partida Carpeta Asfáltica en Caliente, sin considerar los volúmenes de obra de los sub-análisis.
El
reporte se análisis de precios unitarios emitido por ConstrucSoft, es el
siguiente:
Si se desea saber los volúmenes de obra de los sub-análisis, ConstrucSoft los determina en el reporte de horas-hombre, el cual calcula los volúmenes de obra de todos los sub-análisis, como también las horas-hombre requeridas.











